Corona hat den SKC im Griff
Am Wochenende wird lediglich eine Mannschaft des SKC an den Start gehen.

Am Wochenende wird lediglich eine Mannschaft des SKC an den Start gehen.
Vergangenen Sonntag startete der Verein Taekwondo Ates e.V. mit 17 Teilnehmern bei der badischen Meisterschaft im olympischen Vollkontakt Taekwondo in… weiterlesen
Sonntag 20. März 2022 12.15 Uhr: Zeller FV 2 – FV Sulz 2 15.00 Uhr: Zeller FV 1 – FV… weiterlesen
In der Ortschaftsratssitzung am Montagabend in der Cafeteria der Schwarzwaldhalle stand der Rathausplatz gleich zweimal auf der Tagesordnung. Außerdem gab… weiterlesen
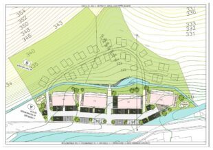
Auf dem Geländes des ehemaligen Sägewerks Spitzmüller am Ortsausgang von Nordrach sollen vier Mehrfamilienhäuser entstehen. Das Bauprojekt wird von einer… weiterlesen
Am Montag, 21. März 2022, findet – bereits um 18 Uhr – die nächste Gemeinderatssitzung der Stadt Zell statt.
Am Montag hat der Gemeinderat einen Bebauungsplan auf den Weg gebracht, sich um eine Brücke gekümmert, die Gebühren für die… weiterlesen
Ein Unfall hat offenbar am Freitagnachmittag gegen 15 Uhr auf der K5354 in der Ortsdurchfahrt Nordrach-Allmend in Richtung Zell an… weiterlesen
Die Beamten des Polizeipostens Zell am Harmersbach haben nach einer gezielten Zerstörungsaktion Ermittlungen wegen Sachbeschädigung eingeleitet und bitten hierzu um… weiterlesen
Leonhard Lehmann: 1947 in Zell geboren, hat er diese Stadt mit 13 Jahren verlassen, um in Bensheim von einem Internat… weiterlesen
Nachdem in den zwei vergangenen Jahren der Josefstag wegen Corona und Lockdown auf Sparflamme und bei schlechtem Wetter stattfinden musste,… weiterlesen
Am 28. März beginnen die Arbeiten zur Sanierung der L 94 zwischen der Einmündung in den »Hagenbach« und Bahnübergang »Dorf«.
Nachdem die Gruppen-Container wieder entfernt sind, steht das ehemalige Gebäude des Kindergartens St. Barbara da wie zuvor.
In Zusammenarbeit mit dem Landschaftserhaltungsverband Ortenau e. V., dem Forstrevierleiter für den Gemeindewald Biberach, Christoph Müller, und dem Forstservice Schnaitter… weiterlesen