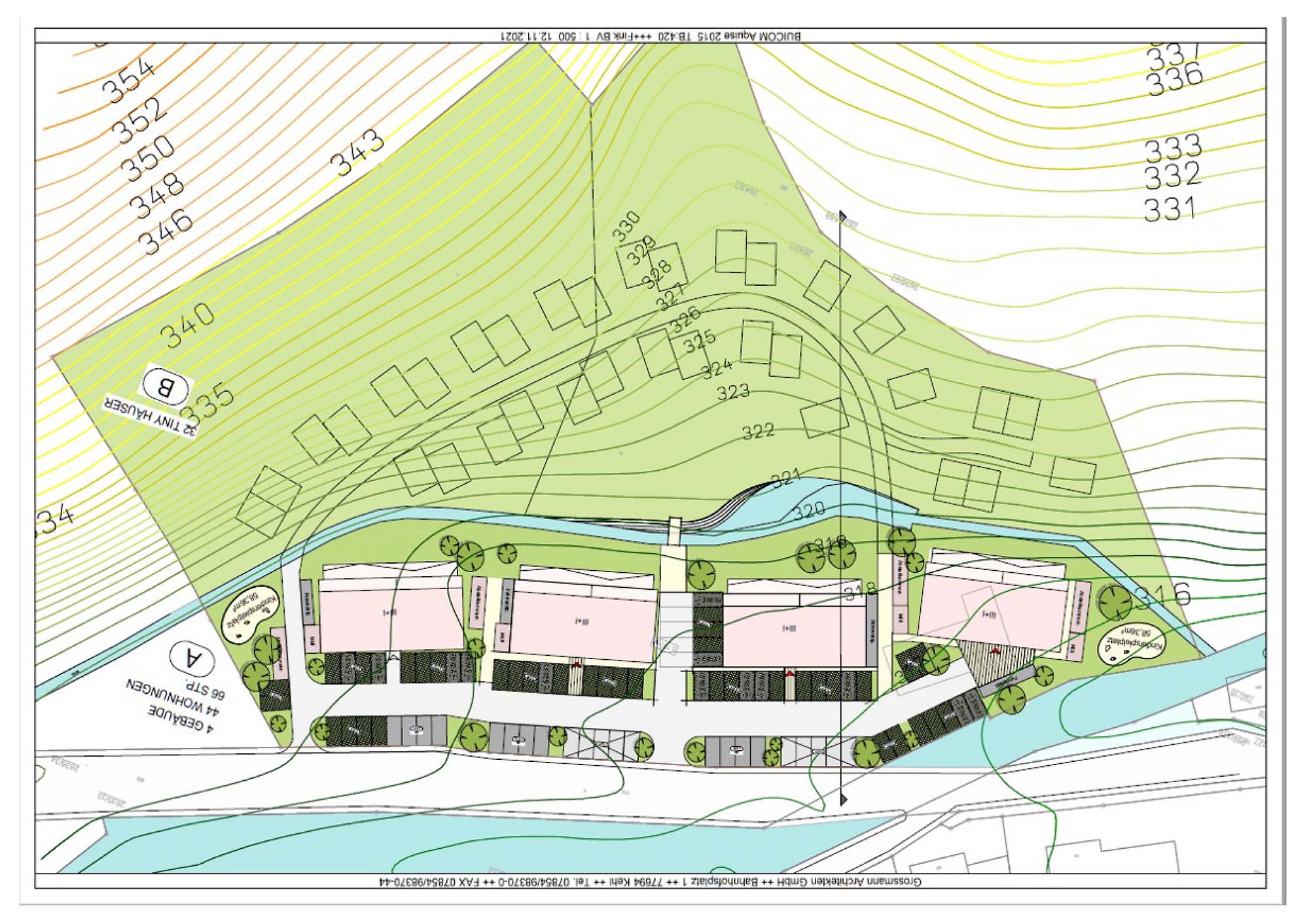
Auf dem Geländes des ehemaligen Sägewerks Spitzmüller am Ortsausgang von Nordrach sollen vier Mehrfamilienhäuser entstehen. Das Bauprojekt wird von einer Investorengruppe um die Firma Grossmann initiiert. Der Baugrund befindet sich im Besitz der Gemeinde Nordrach.
Als Grundlage für die weiteren Planungen hat der Gemeinderat mit großer Mehrheit den Aufstellungsbeschluss für den Bebauungsplan »Sägewerk Spitzmüller« gefasst. Daran ist auch der Verkauf des künftigen Baugeländes geknüpft.
Den kompletten Bericht und weitere Bilder finden Sie in der Print-Ausgabe der Schwarzwälder-Post.





