In der öffentlichen Gemeinderatssitzung am Montag erläuterten Bürgermeister Günter Pfundstein und Stadtbaumeister Tobias Hoffmann den Planungsstand für die Sanierung und Erweiterung des Zeller Rathauses. Das Ingenieurbüro SWS hat das vorläufige Konzept für die Raumnutzung erstellt. In der letzten Woche hat die erste Zusammenkunft mit den Fachplanern für Statik, Lüftung, Elektro und Brandschutz stattgefunden.
Foto: Grafiken: Stadt Zell
Foto: Grafiken: Stadt Zell
Foto: Grafiken: Stadt Zell
Foto: Grafiken: Stadt Zell»Stand heute ist im März 2020 Baubeginn. Ein spannendes Jahr liegt vor uns«, blickte Bürgermeister Günter Pfundstein voraus. Der Amtssitz des Zeller Stadtoberhauptes wird sich nach dem vorläufigen Raumnutzungskonzept auch in Zukunft im historischen Teil des Rathauses im 1. Obergeschoss befinden.
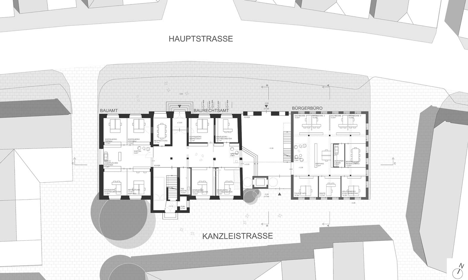
In das Erdgeschoss des historischen Rathauses werden das Bauamt und das Baurechtsamt einziehen. Im Erdgeschoss des Neubaus wird das Bürgerbüro untergebracht. Der Zwischenbau dient der barrierefreien Erschließung des gesamten Rathauses.
Im 1. Obergeschoss des Denkmalgebäudes sehen die Planungen den Amtssitz des Bürgermeisters, das Hauptamt und das Standesamt vor. Die Finanzverwaltung wird auf dieser Ebene in den Neubau einziehen.
Im 2. Obergeschoss des Neubaus ist der Rathaussaal mit Technikräumen und Teeküche geplant. Im historischen Gebäude werden im 2. Obergeschoss Personal- und Aufenthaltsräume eingerichtet. Hier stehen noch Erweiterungsräume zur Verfügung.
Im Untergeschoss des Rathaus-Neubaus entstehen das Stadtarchiv sowie eine öffentliche WC-Anlage, Heizung-, Technik- und EDV-Räume.
Eingangstür soll 1,60 Meter breit werden
Gefordert wurde vom Gemeinderat eine breitere Eingangstür von der Hauptstraße her in den Neubauteil des Rathauses. Die Planungen sehen nun eine 1,60 Meter breite Türöffnung vor. Allerdings muss noch die Statik der Backsteinfront geklärt werden.
Gemeinderat Martin Teufel forderte, dass man sich in Sachen Eingangstürbreite nicht vom Denkmalschutz ausbremsen lassen dürfe. Das Untertorareal zeige, dass es in Denkmalfragen Ermessensspielräume gebe. Seine Fraktion werde die weitere Entwicklung kritisch begleiten. Der Wunsch für eine breitere Türöffnung sei da, es müsse aber auch technisch richtig gebaut werden, war die Sichtweise von Gemeinderat Hannes Grafmüller.





