Einstimmig beschloss der Gemeinderat in seiner öffentlichen Sitzung vom Montag, das Kinderbetreuungsangebot auszubauen. Am »Alten Sportplatz« soll eine neue Kindertagesstätte mit sechs Gruppen errichtet werden. Der bestehende Kindergarten St. Barbara mit zwei Gruppen wird an den neuen Standort verlegt. Die Investitionssumme in Höhe von 4,3 Millionen Euro lässt sich nicht alleine aus Eigenmitteln finanzieren, so dass eine Kreditaufnahme fällig wird.
Foto: Daniel Spitz
Foto: Daniel Spitz
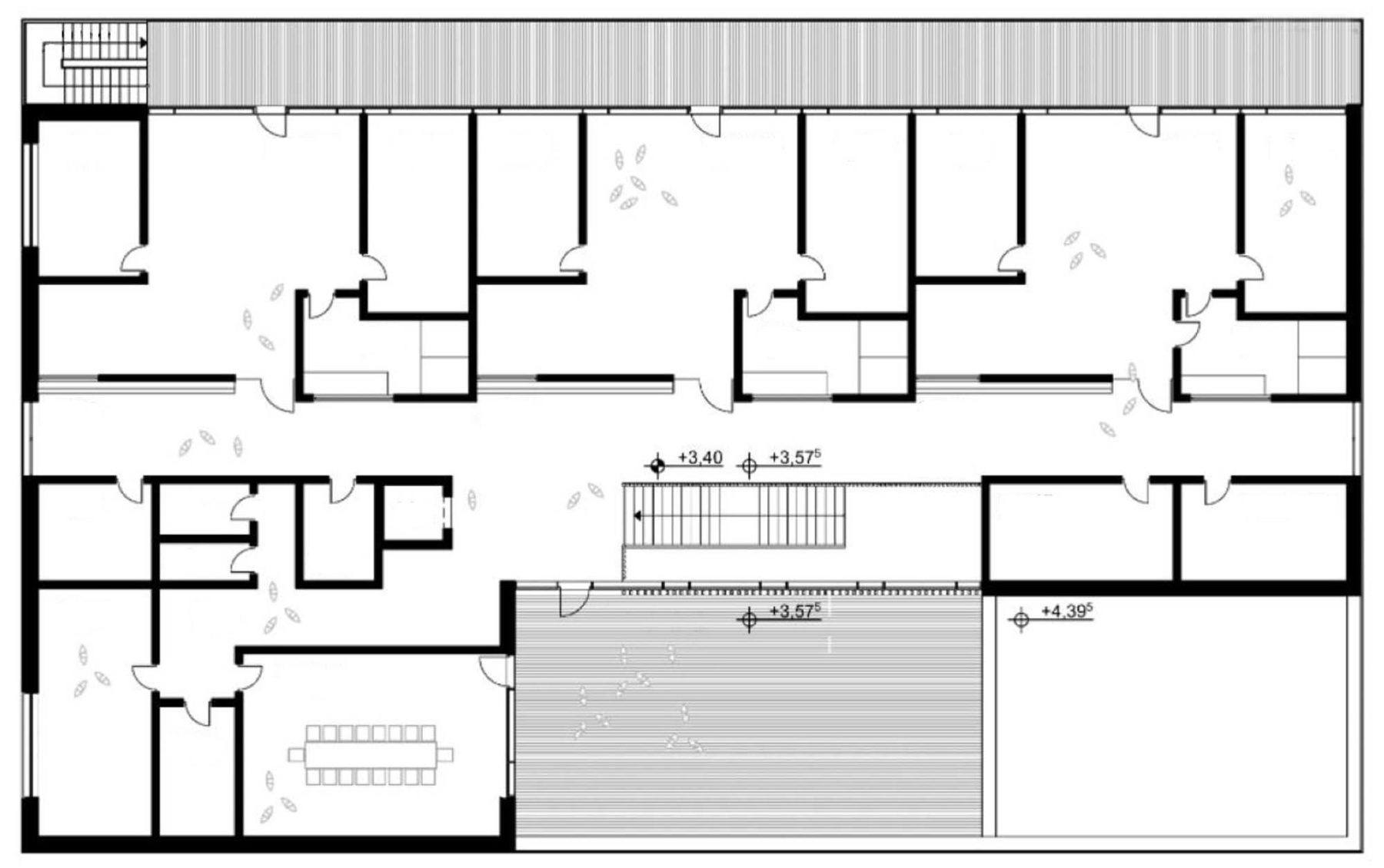
Foto: Grafik: wwg-Architekturbüro
Foto: Grafik: wwg-ArchitekturbüroAufgrund des erwarteten Interesses seitens der Bevölkerung wurde die Sitzung nicht wie üblich im Bürgersaal des Rathauses abgehalten, sondern in den nahe gelegenen Rietsche-Saal verlegt. Angesichts der rund 40 anwesenden Bürger die richtige Entscheidung.
Auf einer Fläche von ca. 2500 Quadratmetern soll ein zweigeschossiger Neubau mit Gartenanteil und Stellplätzen entstehen. Der Garten ist dabei hinter dem Gebäude in Richtung Bahndamm angesiedelt. Zur Sportplatzstraße hin sind Stellplätze vorgesehen. In jedem Geschoss sollen drei Gruppenräume untergebracht werden. Das Konzept sieht eine Kooperation mit der direkt daneben gelegenen Seniorenwohnanlage vor, deren Fertigstellung voraussichtlich Ende 2019 erfolgen wird. Auf dem Flurstück beim »Alten Sportplatz« wird somit ein »Mehrgenerationen-Areal« entstehen.
»Kinder sind unsere Zukunft!«
Neben allen Bedenken, dass Senioren ihre Ruhe brauchen, zeigt sich auch, dass die ältere Generation durchaus gerne in Gesellschaft von Kindern sind. Professionell gestaltete und begleitete Begegnungen sollen persönliche Beziehungen zwischen Kindern und Senioren fördern. »Von dieser Kooperation können Jung und Alt gleichermaßen profitieren und das Zusammenleben in der Gemeinde nachhaltig positiv verändern« zeigte sich Bürgermeisterin Daniela Paletta von dem Konzept überzeugt. In einem vier Jahre währenden Reifeprozess haben sich Verwaltung und Gemeinderat mit dem Thema beschäftigt. Es wurden viele Gespräche geführt, um das Projekt nun erstmals entscheidungsreif der Öffentlichkeit präsentieren zu können. »Wir müssen in die Zukunft investieren – und Kinder sind die Zukunft!« appellierte Daniela Palletta. »Ich stehe mit vollster Überzeugung hinter diesem Projekt.«
Das Gemeindeoberhaupt machte keinen Hehl daraus, dass der Kindergarten-Neubau ein ambitioniertes Projekt ist, das die Gemeinde in den nächsten Jahren sowohl organisatorisch als auch finanziell vor größte Herausforderungen stellen wird. Allerdings verwies sie darauf, dass seit ihrem Amtsantritt rund 1,9 Millionen Euro an Darlehen und Verbindlichkeiten abgebaut werden konnten. Lag die Pro-Kopf-Verschuldung Ende 2014 noch bei 1052 Euro wurde sie zwischenzeitlich auf 773 Euro gesenkt. »Das zeigt, dass wir auch Schulden abbauen können – und darauf bin ich sehr stolz« zeigte Bürgermeisterin Paletta sich optimistisch.
Alle Plätze belegt
Matthias Becker, Fachbereichsleiter Bürgerservice und Bauen, erläuterte die Bevölkerungsentwicklung und die Bedarfsprognose für die Kinderbetreuung. Biberach zählt zu den wenigen Zuzugsgemeinden im Ortenaukreis – dadurch wächst die Bevölkerung schneller als angenommen. Seit Ende 2010 wuchs die Bevölkerung um rund 10%. Wurden im Dezember 2010 noch 3365 Einwohner gezählt, waren es im Dezember 2018 schon 3683 Einwohner. Da es vor allem junge Familien nach Biberach zieht, besteht ein erhöhtes Angebot an Kinderbetreuung. In den drei bestehenden Einrichtungen mit zusammen 10 Gruppen stehen derzeit 195 Betreuungsplätze zur Verfügung. Die Auslastung liegt bei 100 Prozent, so dass keine freien Plätze mehr zur Verfügung stehen und sogar schon eine Warteliste existiert. 19 Biberacher Kinder besuchen mittlerweile auswärtige Einrichtungen.
In den nächsten Jahren wird mit einem zusätzlichen Bedarf von rund 32 weiteren Betreuungsplätzen kalkuliert. Aufgrund des vorhandenen und künftigen Bedarfs sowie der beengten und nicht mehr zeitgemäßen Verhältnisse im derzeitigen Kindergarten »St. Barbara« in der Friedenstraße soll am neuen Standort »Am Sportplatz« die Kindertagesstätte »St. Barbara« neu errichtet und von zwei auf sechs Gruppen erweitert werden. Dabei sind drei Gruppen für die Kleinkindbetreuung unter drei Jahren (U3) und drei weitere Gruppen für Kinder über drei Jahren (Ü3) geplant.
Als Träger hofft man weiterhin die Kath. Kirchengemeinde zu gewinnen. Ein entsprechender Antrag wurde vorbereitet und vom Gemeinderat ebenfalls einstimmig gebilligt. Dazu war eigens Volker Müller, stellvertretender Leiter der Verrechnungsstelle für katholische Kirchengemeinden aus Lahr geladen. Er zeigte sich sehr erfreut über die Planungen und sagte zu, den Antrag positiv zu kommunizieren. Eine Zusage konnte er aber noch nicht versprechen.
Fördermittel sollen beantragt werden
Kämmerer Nicolas Isenmann informierte über die Fördermöglichkeiten. Jede der vier neu zu gründenden Gruppen wird mit 120.000 Euro bezuschusst, so dass insgesamt mit 480.000 Euro an Zuschüssen gerechnet werden darf. Um den Eigenanteil der Gemeinde so gering wie möglich zu halten sollen weitere Fördermittel generiert werden. Genau Zahlen sind zum jetzigen Zeitpunkt jedoch noch nicht bekannt.
Bürger wurden gehört
Auf Antrag von Hubert Scharffenberg und Angelika Ringwald ermöglichte der Gemeinderat den anwesenden Bürgern sich zu Wort zu melden. Dies sollte auch die Entscheidungsfindung der Gemeinderäte erleichtern. Aus den Wortmeldungen von drei jungen Müttern wurde ersichtlich, wie dringlich der Wunsch nach ausreichender Kinderbetreuung ist.
Stimmen aus den Fraktionen
Angelika Ringwald (CDU): »Familie und Beruf müssen vereinbart werden – dass Bedarf besteht und wir was machen müssen ist klar« bezog sie Stellung. Allerdings hinterfragte sie, ob es wirklich sechs Gruppen sein müssen und man nicht eventuell doch mit fünf auskommen könnte. Kritik äußerte sie zudem am Gesetzgeber, der die Hauptkosten für die Kinderbetreuung auf die Gemeinden abwälzt.
Gerhard Matt (SPD): »Ich bin schon lange ein Verfechter dieser Planung und halte nichts von einem Provisorium« zeigte er sich über die vorgestellte Planung erfreut. Es ist eine Investition in die Zukunft und erfüllt auch die gesetzlichen Ansprüche unserer Bürger.
Hans-Peter Fautz (Freie Wähler): »Als Zuzugsgemeinde ist ein breites Betreuungsangebot für Kinder neben einer guten Breitbandversorgung einer der wichtigsten Faktoren für junge Familien« unterstützte er die Planungen.
Langjährige Planungen im Vorfeld
Architekt und Planer Stephan Wussler vom Büro wwg-Architekten in Biberach reflektierte den chronologischen Ablauf der Planungen, die bereits im Jahre 2008 begannen. Zur damaligen Zeit hat lediglich den Bedarf für eine Gruppe ermittelt und noch mit einem Anbau in der Friedenstraße geplant. 2014 wurde die Gemeinde von der Kindergartenleitung auf die beengte Situation aufmerksam gemacht und auch auf den zu erwartenden künftigen Bedarf hingewiesen. 2015 wurde dann eine Standortsuche bei der Grundschule und nördlich der Fliegerkiste durchgeführt. Beide Standorte erwiesen sich jedoch durch zu wenig Fläche und notwendigen Gründstückserwerb als ungeeignet. Ab 2017 konzentrierten sich die Planungen auf den Standort »Am alten Sportplatz«. Das Gelände befand sich im Besitz der Gemeinde und bot genügend Fläche für ein Gebäude mit sechs Gruppen.
Europaweite Ausschreibung der Planungsleistung
Nachdem der Gemeinderat einstimmig den Grundsatzbeschluss zum Neubau der Kindertagesstätte gefällt hatte, wurde das weitere Procedere vorgestellt. Dazu war Frank Edelmann, Geschäftsführer der Rüdiger Kunst-KommunalKonzept GmbH aus Freiburg anwesend. Seit dem 1.1.2018 ist es nach neuem EU-Recht erforderlich öffentliche Projekte, die ein Architektenhonorar von mehr als 221.000 Euro auslösen, europaweit auszuschreiben. Dies ist in diesem Projekt der Fall. Da die Fachplanungen für die Tragwerks- und Energieplanung, die Haustechnik, des Brandschutzes und der Vermessungsleistungen schon nahezu vom wwg-Architektenbüro erbracht worden sind, reduziert sich das EU-weite Vergabeverfahren auf die nachfolgenden Leistungsphasen. Über Zuschlagskriterien wie z.B. örtliche Baubetreuung, Qualifikation oder Verfügbarkeit von Ansprechpartnern soll ein optimale Ablauf gewährleistet werden.
Naturkindergarten Prinzbach
Ebenfalls auf der Tagesordnung stand die Beratung zum Naturkindergarten in Prinzbach. Dieser Punkt wurde jedoch abgesetzt. Es besteht Klärungsbedarf bezüglich des benötigten Grundstücks.
Geschwindigkeitsmessung
Am 6. Februar wurden in einer 30er-Zone 1758 Fahrzeuge gezählt, davon wurden 202 Fahrzeuge beanstandet. Die Höchstgeschwindigkeit betrug 52 km/h.
Arbeitslosenstatistik
»Im Januar waren in Biberach 50 Personen arbeitslos gemeldet« informierte Bürgermeisterin Daniela Paletta. Sieben Personen mehr wie im Monat Dezember und neun mehr als im Vergleichsmonat 2017. Im Bereich des SBG II sind 19 Personen gemeldet, 31 weitere im Bereich des SBG III.





