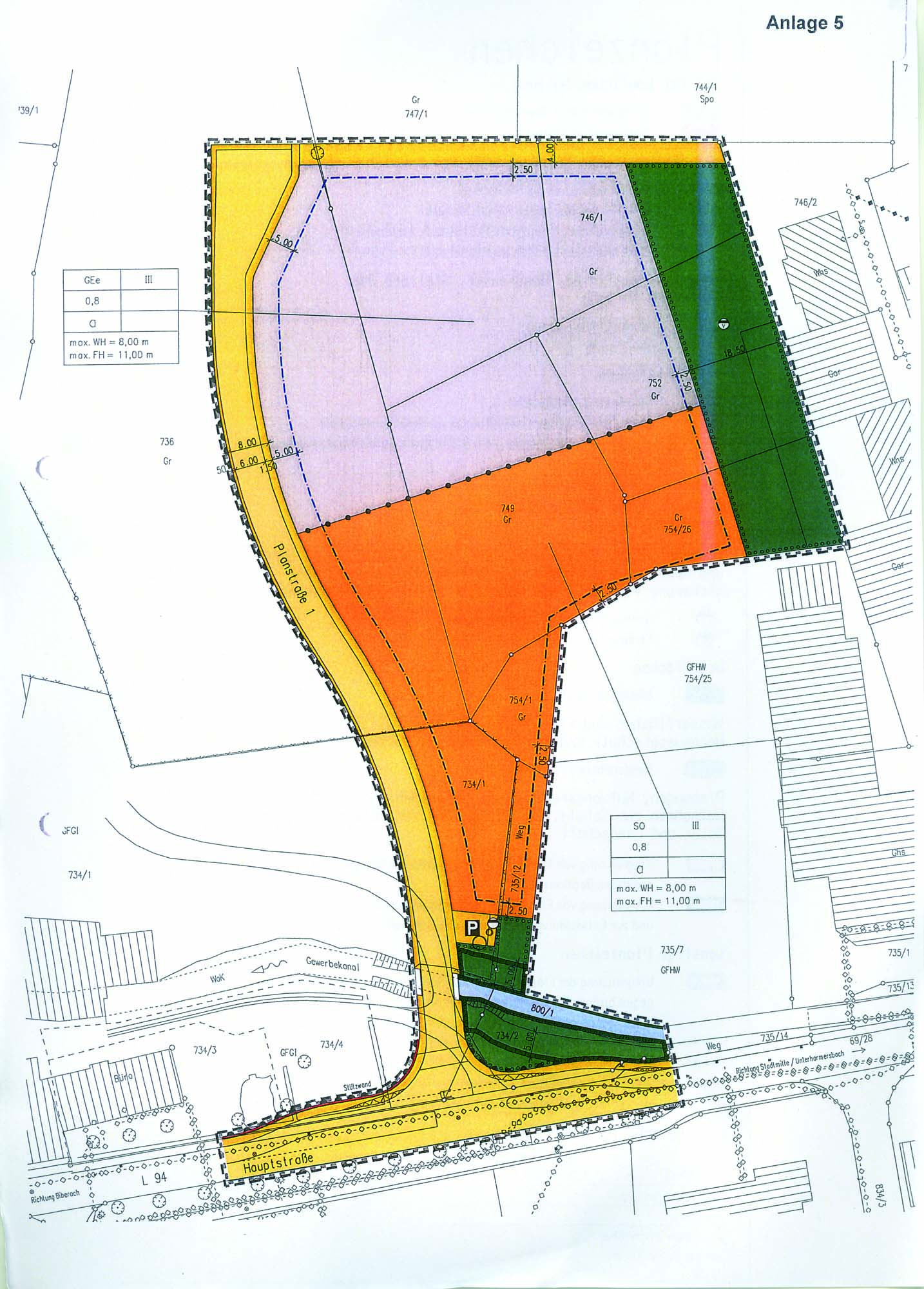
Der Gemeinderat hat sowohl die 4. Änderung des Flächennutzungsplans als auch die Aufstellung des Bebauungsplans »Gewerbegebiet Keramikareal 1« beschlossen.
Herzstück der Fläche ist die Sonderbaufläche »Drogeriemarkt«.
Das neue Gewerbegebiet am Zeller Stadteingang umfasst ein Fläche von 1,32 Hektar. 3620 Quadratmeter der Fläche stehen für den Bau des DM-Marktes zur Verfügung. Die weiteren 4580 Quadratmeter stehen für die Ansiedlung von ein bis zwei weiteren Gewerbebetrieben zur Verfügung. Die Verkaufsfläche des Drogeriemarktes wird vom Regionalverband auf 700 eventuell 750 Quadratmeter begrenzt. Ausgeschlossen wird der Verkauf von zentrenrelevanten Artikeln.
Die Erschließung erfolgt über eine Stichstraße mit Wendehammer. Entlang der Landstraße wird eine Ein- und Abbiegespur eingerichtet. Einschränkungen gibt es hinsichtlich der Lärmemission zum Wohngebiet Waagmatt. Das Baufenster lässt den Bau vom maximal drei Vollgeschossen mit einer Wandhöhe von acht und einer Firsthöhe von elf Metern zu.
Begleitend zur Erstellung des Bebauungsplans wurden sechs Gutachten erstellt: Einzelhandelsgutachten, Umweltbericht, Bodengutachten, Artenschutzbericht, Lärmgutachten und Entwässerungskonzept. Sowohl die Aufstellung des Bebauungsplans als auch das Änderungsverfahren für den Flächennutzungsplan wurden vom Zeller Gemeinderat einstimmig auf den Weg gebracht.
200 Euro je Quadratmeter
Der Gemeinderat legte den Kaufpreis für die insgesamt 18 Bauplätze im Neubaugebiet »Unterer Hillig IV« fest. Der Gesamtkaufpreis beträgt 200 Euro je Quadratmeter. Insgesamt wurden 9682 Quadratmeter baureif erschlossen. Die Gesamtkosten belaufen sich auf 1,57 Millionen Euro. Der Erschließungsbeitrag wird auf 44,63 Euro je Quadratmeter Nutzfläche festgelegt.





