• Kontakt
  • Anmelden

Schwarzwälder Post

  • Startseite
  • Sport
  • Veranstaltungen
    • Veranstaltungskalender
    • Veranstaltung anmelden
Oberharmersbach | 23.12.2021

Beschränkung für die »Ballmatte«

Lebensmittelmarkt, aber keine Direktvermarktung – Regionalplan macht Oberharmersbach Strich durch die Rechnung

Foto:
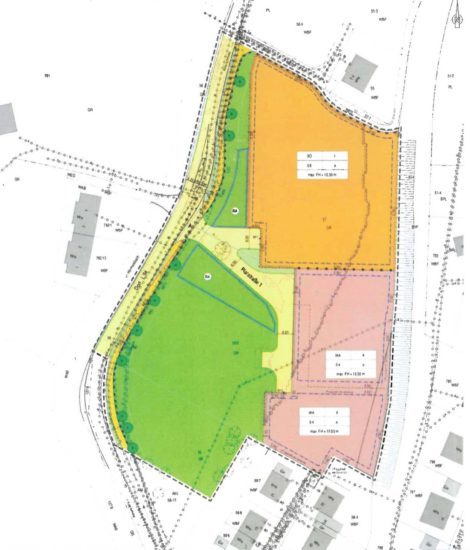
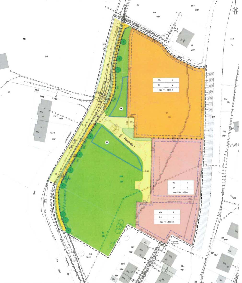
Der Entwurf zum Bebauungsplan »Ballmatte« sieht im Norden ein Sondergebiet »Nahversorgung« vor, im Südosten Wohnbebauung. Foto: Illustration: Kappis Ingenieure
von Susanne Vollrath

Die Vorstellung des Vorentwurfs zum Bebauungsplan »Ballmatte« sorgte am Montag im Gemeinderat für enttäuschte Gesichter. Am Ortseingang kann zwar ein neuer Lebensmittelmarkt gebaut werden. Mehr Einzelhandel darf sich aber nicht ansiedeln. Der Regionalplan unterstellt für ein solches Unterfangen die »Unverträglichkeit auf den Einzelhandel des regionalen Umfelds«. An dieser Einschätzung war auch nach vielen Diskussionen mit den zuständigen Stellen nichts zu rütteln.

Als sie die Nachricht hörte, rieb sich nicht nur Gemeinderätin Anja Jilg verwundert die Augen. In Zell wurde kürzlich das Trio aus Edeka, Aldi und Drogeriemarkt noch als Win-Win-Situation verkauft.

Dass für Oberharmersbach die regional- und landesplanerischen Hürden unüberwindbar sind, ärgerte auch Bürgermeister Richard Weith. Agglomeration sei bei den Gesprächen mit Regierungspräsidentin und Regionalverband ein großes Thema gewesen, berichtete er. Das Problem: Eingänge und Parkplätze zweier Handelsunternehmungen funktional so voneinander zu trennen, dass sie nach den Formalien keine Agglomeration bilden, ist auf der Ballmatte nicht möglich. Dass auf den Regionalplan gepocht wurde, versteht Weith nicht. Er sieht Gemeinden durch Entscheidungen wie diese unnötig in ihrer Entwicklung blockiert.

Den kompletten Bericht finden Sie in der Print-Ausgabe der Schwarzwälder-Post.

Das könnte Sie auch interessieren:

  • 2026-1-14-ZE-bia-Tagespflege-und-A-Aktivierung Engelstube 3
    Hoch Informatives zum Tag der Pflege
  • Hombacher Kegler übernehmen wieder die Tabellenspitze
    Hombacher Kegler übernehmen wieder die…
  • dreierFoto: Collage: Peter Baumann
    Schachclub Zell verschenkt Punkt gegen den…

Schlagworte:
Gemeinde Oberharmersbach, Gemeinderat Oberharmersbach

Veranstaltungskalender für Zell a. H., Biberach, Nordrach und Oberharmersbach

Februar 2026
MDMDFSS
       1
2 3 4 5 6 7 8
9 10 11 12 13 14 15
16 17 18 19 20 21 22
23 24 25 26 27 28 
« Jan.  März »

Zell a. H.

  • Trauercafé „Lichtblick“ lädt zum Austausch ein am 7.02.2026 ab 15:00 Uhr
  • Narrenzunft Zell am Harmersbach: „Städtleabend – do musch no geh!“ am 7.02.2026 ab 20:11 Uhr
  • FORUM älterwerden Zell am Harmersbach: Seniorenfasend 2026 am 11.02.2026 ab 14:00 Uhr

Biberach

  • Kath. Kirchengemeinde St. Blasius Biberach: Närrischer Familiengottesdienst am 8.02.2026 ab 9:30 Uhr
  • FORUM älterwerden Biberach: Seniorenfasent am 17.02.2026 ab 14:00 Uhr
  • DRK Ortsverein Biberach: Jahreshauptversammlung am 7.03.2026 ab 19:00 Uhr

Nordrach

  • Trachtengruppe Nordrach: Generalversammlung am 20.02.2026 ab 19:30 Uhr
  • Trachtenkapelle Nordrach: Mitgliederversammlung am 7.03.2026 ab 18:00 Uhr

Oberharmersbach

  • Hausputz bei unseren Singvögeln am 7.02.2026 ab 14:00 Uhr
  • Fasentgemeinschaft Dörfle Narren Oberharmersbach: Dörfleball – am Samstag in der Reichstalhall am 7.02.2026 ab 20:10 Uhr
  • Bärenzunft Oberharmersbach: Narrengottesdienst mit Verkleidung am 8.02.2026 ab 10:30 Uhr

Schulferien & Feiertage

  • Keine Termine

© 2026 Schwarzwälder Post

  • Login für Autoren
  • Sitemap
  • Datenschutz
  • Impressum
  • Kontakt