

Orgelbauer Claudius Winterhalter ist ein Meister seines Faches.


Die Firma Schöpf ehrt ihre langjährigen Mitarbeiter. Von links nach rechts: Geschäftsführerin
Brigitte Huber, Klaus Harter, Martin Kienzle, Angelika Schöpf, Ingo Braun und Geschäftsführer
Manfred Schöpf.


Wehmütig schaut der Narr auf solche Bilder, aber auch diese Fasent wird wieder nicht so unbeschwert stattfinden können wie er es gewohnt ist.


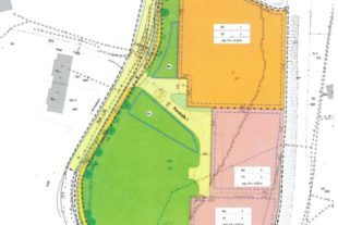
Der Entwurf zum Bebauungsplan »Ballmatte« sieht im Norden ein Sondergebiet »Nahversorgung« vor, im Südosten Wohnbebauung.


Der Vorentwurf für den Rathausplatz Oberharmersbach, über den der Gemeinderat am Montag
beraten hat.


In der zum Büro umgestalteten einstigen Schmiedewerkstatt: Die drei heutigen Nachfolge-Generationen.


Seit Wasser nicht mehr aus Brunnen sondern aus in Häusern verlegten Leitungen fließt, gibt es den aus dem Schlosserhandwerk entstandenen Beruf des Wasserinstallateurs. Was uns heutzutage unter anderem die tägliche Dusche ermöglicht.


Im Sack fanden die Kinder leckere Weckmänner.


Die Kinder im Kinderhaus Sonnenblume freuten sich sehr über den Besuch des Nikolaus.


Komplex: Die Mechanik einer Orgel ist heute mit Hightech-Elementen kombiniert.


Klangturm: Mit der fahrbaren Orgel in der Alpirsbacher Klosterkirche setzte die Orgelbauwerkstatt Winterhalter neue Akzente.


Die Dreikönigskinder können coronabedingt zum Jahresanfang nicht von Haus zu Haus ziehen.
Am 2. Januar gibt es zur Eröffnung der Aktion einen Wortgottesdienst.


Bei der Eröffnung der Teststation am Samstag (von links): Bürgermeister Richard Weith, Daniela Leotta, Anette Fleu, Britta Speck, Doris Lehmann sowie der Betreiber Dr. Peter Kaiser.


Bürgermeister Richard Weith (links) übergab an Heimleiter Michael Schlosser (rechts) Geschenke für die Senioren und für das Personal.


Marius Baumann, 1. Vorsitzender, führte durch die Hauptversammlung.


Die 2. Vorsitzende Anna Lang übergab Beisitzerin Elke Brosemer ein Präsent für die geleisteten Arbeitsstunden.


Am Samstag wurde das »Märchenhafte Oberharmersbach« offiziell eröffnet. Mit dabei waren (von links): Stefan Lehmann, Aileen Rechtsteiner, Johanna, David und Richard Weith sowie Felix Huber.


Mit Musik von der Katzenhalde senden Felix Huber und sein Sohn Sacha wieder weihnacht liche Stimmung ins Dorf.


Am Samstag ab 17.30 Uhr leuchtet Oberharmersbach auf. Strahlender Mittelpunkt im Dorf ist seit wenigen Wochen das sanierte Rathausgebäude.


»Lieselotte Weihnachtskuh« steht im Mittelpunkt des Märchens, das die Besucher in diesem Jahr in Oberharmersbach erleben können.


In dieser hochmodernen Räucherkammer reifen Schinken und Bratwürste.


Markus Schwarz mit jener Wurstspritze, die ihm die Oma dereinst im zweiten Lehrjahr geschenkt hatte.


Vor der Weiterverarbeitung muss eine Rinderhälfte einige Tage im Kühlraum abhängen.


Rosa und Alfred Lehmann (Mitte) sind seit 60 Jahren verheiratet. Zur diamantenen Hochzeit gratulierten Bürgerwehr-Vorstand Klaus Laifer (links) und Hauptmann Albert Nitsche (rechts).